Դիտումների քանակ - 23
Նորակառույց | Բնակարան |
Վաճառք
Երևան, Արաբկիր, Գրիբոեդովի փող
ID 193948
| $ 96,000 |
2 Սենյակ
53 Ք.Մ
6 / 14
3 Մ
1
Շինության տիպը
Մոնոլիտ
Վիճակը
Զրոյական
Ինֆորմացիա
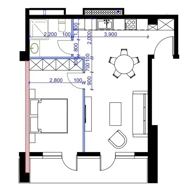
Վաճառվում է 2 սենյականոց բնակարան Գրիբոյեդով Պարկ բնակելի համալիրում,որը գտնվում է 14 հարկանի նորակառույց շենքի 6րդ հարկում։Բնակարանի ընդհանուր մակերեսը կազմում է 53 ք․մ․,որը գտնվում է զրոյական վիճակում,տեղադրված է որակյալ արտաքին դուռ և եվրոպատուհաններ, սենյակների պատերը բաժանված են և գաջապատված,իսկ հատակը հարթեցված է:Բնակարանն ունի բաց պատշգամբ և բակ նայող տեսարան։Շենքը երեսպատված է տրավերտինով, տեղադրված են որակյալ վերելակներ:
Կոմունալ հարմարություններ
Ջեռուցում
Ինտերնետ
Տաք ջուր
Էլեկտրոէներգիա
Գազ
Խմելու ջուր
Մշտական ջուր
Լրացուցիչ
Եվրոպատուհան
Երկաթյա դուռ
Բաց պատշգամբ
Անվտանգության համակարգ
Արևկող
Գեղեցիկ տեսարան
Խաղահրապարակ
Զբոսայգի
ԿԵՆՏՐՈՆ
(գործակալություն)


