Դիտումների քանակ - 319
Նորակառույց | Բնակարան |
Վաճառք
Երևան, Արաբկիր, Գրիբոեդովի փող
ID 194015
| $ 115,000 |
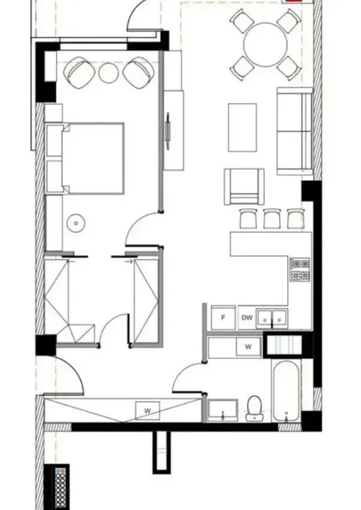
2 Սենյակ
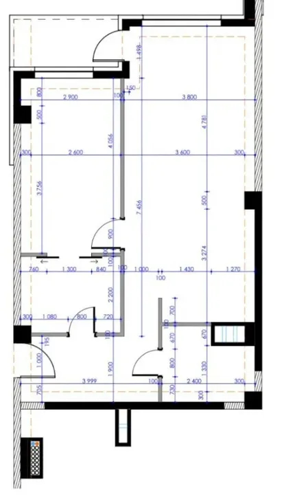
71 Ք.Մ
11 / 16
3 Մ
1
Շինության տիպը
Մոնոլիտ
Վիճակը
Զրոյական
Ինֆորմացիա
Վաճառվում է 2 սենյականոց բնակարան Գրիբոյեդով Պարկ բնակելի համալիրում,որը գտնվում է 16 հարկանի նորակառույց շենքի 11րդ հարկում։Բնակարանի ընդհանուր մակերեսը կազմում է 71 ք․մ․,որը գտնվում է զրոյական վիճակում,տեղադրված է որակյալ արտաքին դուռ և եվրոպատուհաններ, սենյակների պատերը բաժանված են և գաջապատված,իսկ հատակը հարթեցված է:Բնակարանն ունի բաց պատշգամբ։Շենքը երեսպատված է տրավերտինով, տեղադրված են որակյալ վերելակներ:
Կոմունալ հարմարություններ
Ջեռուցում
Ինտերնետ
Տաք ջուր
Էլեկտրոէներգիա
Գազ
Խմելու ջուր
Մշտական ջուր
Լրացուցիչ
Եվրոպատուհան
Երկաթյա դուռ
Բաց պատշգամբ
Անվտանգության համակարգ
Արևկող
Գեղեցիկ տեսարան
Խաղահրապարակ
Զբոսայգի
Վերելակ
ԿԵՆՏՐՈՆ
(գործակալություն)


