Դիտումների քանակ - 605
Նորակառույց | Կոմերցիոն |
Վաճառք
Երևան, Քանաքեռ-Զեյթուն, Սևակի փող
ID 194246
| $ 126,000 |
- Շինության ներսում
64 Ք.Մ
1 / 18
3 Մ
Շինության տիպը
Մոնոլիտ
Վիճակը
Զրոյական
Ինֆորմացիա
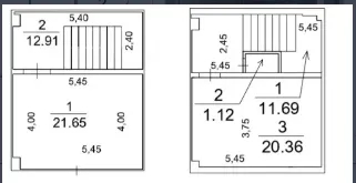
Պարույր Սևակի նորակառույց շենքում վաճառվում է բազմաֆունկցիոնալ տարածք։ Առկա են 56քմ-ից սկսած տարածքներ 18 հարկանի բազմաբնակելի շենքի առաջին հարկում։ Հարմար են բոլոր տեսակի գործունեության համար։ Կան և զրոյական և վերանորոգված տարածքներ, բոլորը վիտրաժներով՝ արևկող և լուսավոր։
MyRealty Real Estate
(գործակալություն)
Հեռախոս
+374 77 885558


+374 55 808090
+374 77 885558



+374 55 808090
Էլ. հասցե
[email protected]
[email protected]