Դիտումների քանակ - 516
Բնակարան | Վաճառք
Երևան, Արաբկիր, Հակոբյան փող
ID 194706
| $ 154,000 |
  • 4 Սենյակ
  • 80 Ք.Մ
  • 5 / 5
  • 2.8 Մ
  • 1
Շինության տիպը
Քարե
Վիճակը
Վերանորոգված

Ինֆորմացիա

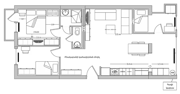
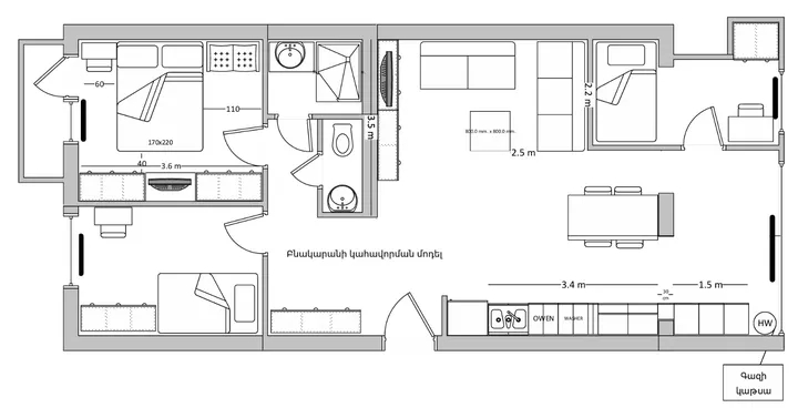
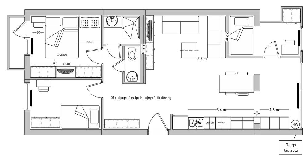
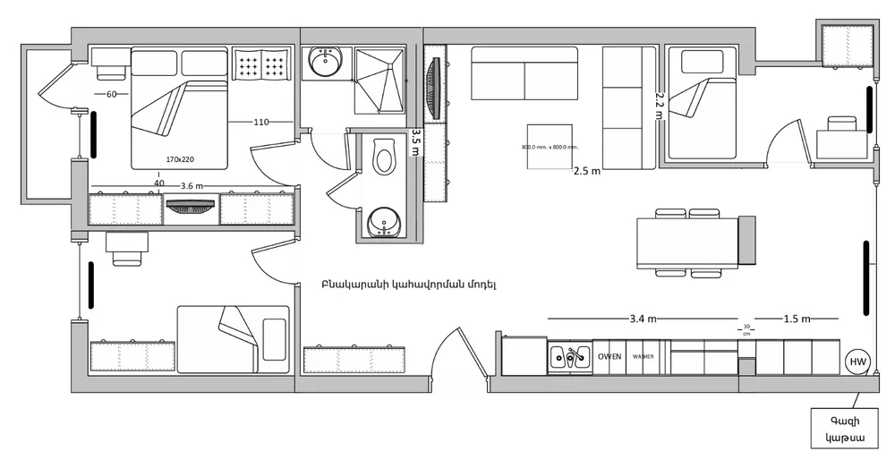
Վաճառվում է կապիտալ վերանորոգված 3 սենյականոց բնակարան (ձևափոխված 3 լուսավոր ննջասենյակի)՝ Մերգելյանում, Հակոբյան 8 հասցեով։ Բաց հատակագիծ՝ միացված հյուրասենյակ և խոհանոց, առանձին լոգասենյակ և սանհանգույց։ - 80.2 քմ, քարե շենքի 5/5-րդ հարկ, արևելք-արևմուտք լուսավորությամբ։ - Ունի բաց պատշգամբ հիմնական ննջասենյակից։ Բնակարանի մասին - Կապիտալ վերանորոգում՝ նոր տանիք, պղնձե էլեկտրալարեր, ջրախողովակներ, ջերմամեկուսացված պատուհաններ - Ջեռուցման համակարգ և օդորակիչ - Բաց հատակագիծ՝ միացված խոհանոց և հյուրասենյակ, 3 ննջասենյակ - Բարձրակարգ եվրոպական ներքին դռներ, իտալական և գերմանական լուսավորություն, ֆրանսիական ձգվող առաստաղներ - Պատվերով ներկառուցված պահարաններ և դարակաշար - Ժամանակակից խոհանոց՝ չժանգոտվող պողպատից սարքավորումներով, Corian աշխատանքային մակերեսով, կարծրացված ապակե պատի երեսապատմամբ - Մասամբ կահավորված և հարդարված՝ եվրոպական թանկարժեք կահույք, բրդյա գորգ, խոհանոցային սարքավորումներ, փոշեկուլ, 32" հեռուստացույց Տեղադրություն - Քայլելու հեռավորության վրա՝ Բարեկամություն մետրո, սուպերմարկետներ, գյուղտնտեսական շուկա, սրճարաններ, ֆիթնես կենտրոն, Մերգելյան այգի, Նաիրի Զարյան դպրոց - Խաղաղ և մաքուր՝ զերծ փողոցի աղմուկից ու փոշուց Գինը՝ 154,000 ԱՄՆ դոլար։

Կոմունալ հարմարություններ

  • Ջեռուցում
  • Ինտերնետ
  • Տաք ջուր
  • Էլեկտրոէներգիա
  • Օդորակիչ
  • Գազ
  • Խմելու ջուր
  • Մշտական ջուր

Լրացուցիչ

  • Կահույք
  • Տեխնիկա
  • Եվրոպատուհան
  • Բաց պատշգամբ
  • Լամինատ
  • Գեղեցիկ տեսարան
  • Ճանապարհամերձ
  • Զբոսայգի
Արարատ ռիելթի
(գործակալություն)

Գնահատական

Նմանատիպ օրինակներ