View count - 657
ساختمان نوساز | آپارتمان |
خرید
ایروان, عربگیر, خیابان کومیتاس
ID 193565
| $ 198,000 |
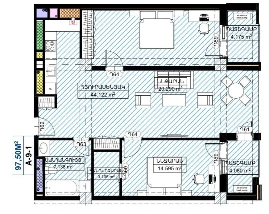
3 اتاق
100 متر مربع
9 / 18
3 M
1
نوع ساختمان
مونولیت(یکپارچه)
وضعیت ملک
نیمه کاره
امکانات
سیستم گرمایش
اینترنت
آب گرم
برق
گاز
آب
حوض– برکه
اطلاعات بیشتر
پنجره های یورو
درب آهنی
بالکن باز
سیستم امنیتی
نورگیر عالی
چشم انداز (ویو)
زمین بازی
پارک
آسانسور


