View count - 365
ساختمان نوساز | آپارتمان |
خرید
ایروان, کاناکِر – زیتون, خیابان داویت آنهاخت
ID 194083
| $ 149,000 |
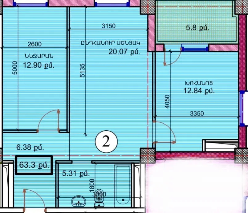
2 اتاق
64 متر مربع
2 / 15
3 M
1
نوع ساختمان
مونولیت(یکپارچه)
وضعیت ملک
بازسازی شده
امکانات
آب
حوض– برکه
برق
ایر کاندیشنر
اینترنت
آب گرم
گاز
سیستم گرمایش
اطلاعات بیشتر
درب آهنی
سیستم امنیتی
کفپوش لمینیت
کاشی
پنجره های یورو
آسانسور
بالکن باز
تجهیزات و وسایل
مبلمان
KENTRON
(آژانس)


