Դիտումների քանակ - 607
Նորակառույց | Կոմերցիոն |
Վաճառք
Երևան, Քանաքեռ-Զեյթուն, Սևակի փող
ID 194076
| $ 130,000 |
- Շինության ներսում
70 Ք.Մ
1 / 18
3 Մ
Շինության տիպը
Մոնոլիտ
Վիճակը
Վերանորոգված
Ինֆորմացիա
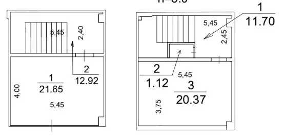
Վաճաեվում է կոմերցիոն տարածք Զեյթունում Պարույր Սևակ փողոցում Նորակառույց շենքի 1-ին հարկում Տարածքը բաղկացած է 2 հարկից 1-ին հարկ և նկուղային Հարմար է տարբեր տեսակի գործնեության համար
Կոմունալ հարմարություններ
Խմելու ջուր
Մշտական ջուր
Օդորակիչ
Տաք ջուր
Լրացուցիչ
Սալիկ
Եվրոպատուհան
MyRealty Real Estate
(գործակալություն)
Հեռախոս
+374 77 885558


+374 55 808090
+374 77 885558



+374 55 808090
Էլ. հասցե
[email protected]
[email protected]