Դիտումների քանակ - 826
Կոմերցիոն |
Վաճառք
Երևան, Քանաքեռ-Զեյթուն, Սևակի փող
ID 194241
| $ 130,000 |
- Շինության ներսում
56 Ք.Մ
1 / 18
3 Մ
Շինության տիպը
Մոնոլիտ
Վիճակը
Զրոյական
Ինֆորմացիա
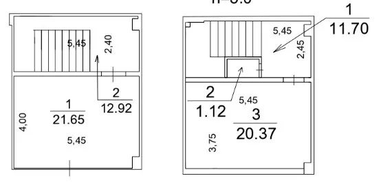
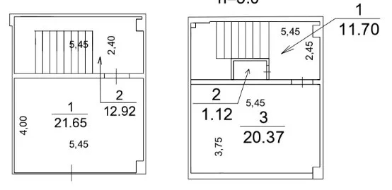
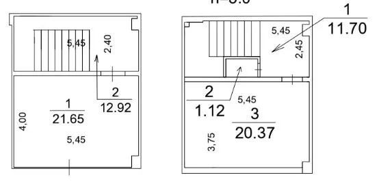
Պարույր Սևակի նորակառույց շենքում վաճառվում է բազմաֆունկցիոնալ տարածք։ Առկա են 56քմ-ից սկսած տարածքներ 18 հարկանի բազմաբնակելի շենքի առաջին հարկում։ Հարմար են բոլոր տեսակի գործունեության համար։ Կան և զրոյական և վերանորոգված տարածքներ, բոլորը վիտրաժներով՝ արևկող և լուսավոր։
ԿԵՆՏՐՈՆ
(գործակալություն)


