Кол. просмотров - 828
Коммерческая недвижимость |
Продажа
Ереван, Канакер-Зейтун, Севак ул
ID 194241
| $ 130,000 |
- Внутри построики
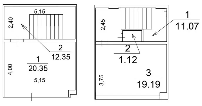
56 Кв. м
1 / 18
3 М
Тип постройки
Монолит
Состояние
Нулевое состояние
КЕНТРОН
(агенство)


