View count - 17
ساختمان نوساز | واحد تجاری- اداری |
خرید
ایروان, کاناکِر – زیتون, خیابان سِواک
ID 194096
| $ 88,000,000 |
- داخل ساختمان
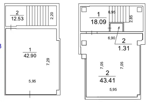
125 متر مربع
1 / 18
3 M
نوع ساختمان
مونولیت(یکپارچه)
وضعیت ملک
بازسازی شده
امکانات
آب
حوض– برکه
برق
ایر کاندیشنر
آب گرم


