View count - 843
ساختمان نوساز | واحد تجاری- اداری |
خرید
ایروان, کاناکِر – زیتون, خیابان سِواک
ID 194251
| $ 220,000 |
- داخل ساختمان
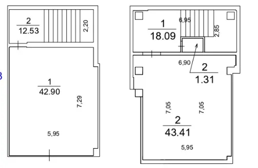
118 متر مربع
1 / 18
3 M
نوع ساختمان
مونولیت(یکپارچه)
وضعیت ملک
نیمه کاره
KENTRON
(آژانس)


